Architectural Design Services - Boston, Massachusetts














Killington, VT
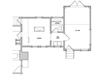
The Plan
Looking down from above
The simple, efficient plan provides ample space for hanging up coats and skis in the winter, a two-person shower, sink alcove for an antique soapstone sink, and generous Art Room for family projects.
Peter Herman, Architect, AIA - Copyright © 2007 Studio.625, Inc. All rights reserved. Corporation name & logo are Service Marks