Architectural Design Services - Boston, Massachusetts














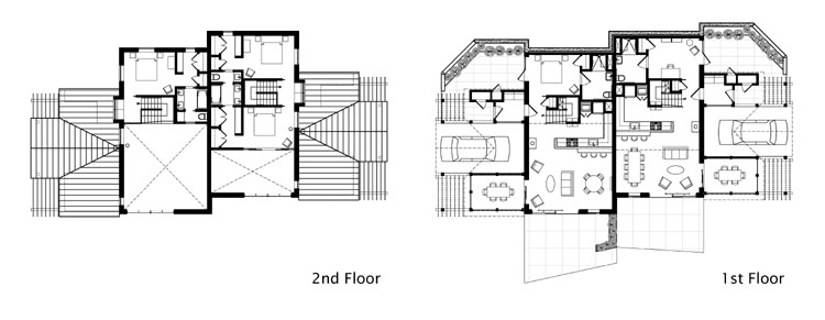
The typical "Uphill" duplexes would have had 2 or 3 bedroom options. In either case, the plans would have featured a generous cathedral-ceiling south & view-facing living/dining room; fully accessible 1st floor bedroom/study/ media-room; amply-sized upper-level bedrooms with walk-in closets and a clever shared 4 piece bathroom.
Peter Herman, Architect, AIA - Copyright © 2007 Studio.625, Inc. All rights reserved. Corporation name & logo are Service Marks