Architectural Design Services - Boston, Massachusetts














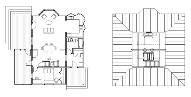
Cabin
Waldoboro, ME
The Plans
Peter Herman, Architect, AIA - Copyright © 2007 Studio.625, Inc. All rights reserved. Corporation name & logo are Service Marks