Architectural Design Services - Boston, Massachusetts














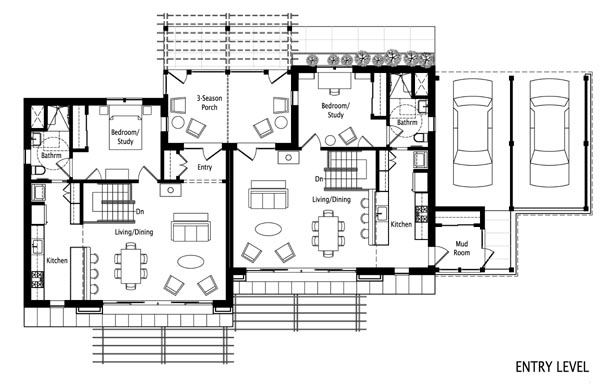
The typical 3-bedroom "Downhill" duplex first floor plan would have featured generous high-ceilings south & view-facing living/dining room; fully accessible 1st floor bedroom/study/ media-room, and kitchen. Note that guests could have accessed the bathroom without passing through the bedroom. See next page for lower-level plans
Peter Herman, Architect, AIA - Copyright © 2007 Studio.625, Inc. All rights reserved. Corporation name & logo are Service Marks