Architectural Design Services - Boston, Massachusetts














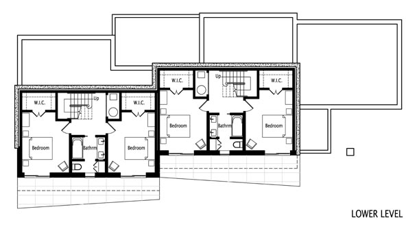
The lower level plan featured two equal & amply-sized bedrooms; each with large walk-in closets and direct access to a south & view-facing terrace.
Peter Herman, Architect, AIA - Copyright © 2007 Studio.625, Inc. All rights reserved. Corporation name & logo are Service Marks